当前位置:首页 > 产品中心 > 制粒设备系列
products
产品中心

    在线咨询
    • PGL系列喷雾干燥制粒机
    • PGL系列喷雾干燥制粒机
    • PGL系列喷雾干燥制粒机

    PGL系列喷雾干燥制粒机

    所属分类:制粒设备系列

    产品概述:本机组工作过程为料液通过隔膜泵高压输入,喷出雾状液滴,然后同热空气并流下降,大部分粉粒由塔底排料口收集,废气及其微小粉末经旋风分离器分离,废气由抽风机排出,粉末由设在旋风分离器下端的授粉筒收集,风机出口还可装备二级除尘装置,回收率在96-98%以上。

    18051209678谢经理
    精良品质·匠心制造
    在线咨询

    产品概述

      本机组是一种可以同时完成干燥和造粒的装置。按工艺要求可以调节料液泵的压力、流量、喷孔的大小,得到所需的按一定大小比例的球形颗粒。
      本机组工作过程为料液通过隔膜泵高压输入,喷出雾状液滴,然后同热空气并流下降,大部分粉粒由塔底排料口收集,废气及其微小粉末经旋风分离器分离,废气由抽风机排出,粉末由设在旋风分离器下端的授粉筒收集,风机出口还可装备二级除尘装置,回收率在96-98%以上。
      本机组与物料接触部分的塔体、管道、分离器的材料,均采用SUS304制作。在塔体内部与外壳之间有足够的保湿层,填充材料为超细玻璃棉,塔体设有观察门、视镜、光源及控制仪表,由电器控制操作台控制和显示。

    产品应用

    制药工业:片剂、冲剂、胶囊剂颗粒;低糖、无糖的中成药颗粒; 食品:可可、咖啡、奶粉、颗粒果汁、调味品等; 其它行业:农药、饲料、化肥、颜料、染料等。

    产品特点

    1、干燥速度快,料液经雾化后表面积大大增加,在热风气流中,瞬间就可蒸发95%-98%的水份,完成干燥的时间仅需要十几秒到数十秒种,特别适用于热敏性物料的干燥。
    2、所有产品为球状颗粒,粒度均匀,流动性好,溶解性好,产品纯度高,质量好。
    3、使用范围广,根据物料的特性,可以用热风干燥, 也可以用冷风造粒,对物料的适应性强。
    4、操作简单稳定,控制方便,容易实现自动化作业。

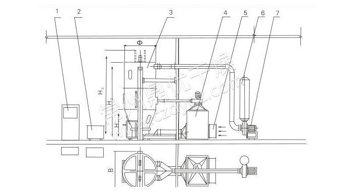
    结构示意图

    喷雾干燥制粒机结构示意图

    1、控制柜 2、输液小车 3、主机 4、换热柜 5、亚高效过滤器 6、消声器 7、引风机

    技术参数

    项 目 单位/机型 PGL-3B PGL-5B PGL-10B PGL-20B PGL-30B PGL-80B PGL-120B
    流浸膏 min kg/h 2 4 5 10 20 60 100
    max kg/h 4 6 15 30 40 100 140
    沸腾能力 min kg/批 2 6 10 30 60 100 150
    max kg/批 6 15 30 80 160 250 450
    液体比重 kg/L ≤1.30
    原料容器量 L 26 50 220 420 620 980 1600
    容器直径 mm 400 550 770 1000 1200 1400 1600
    引风机功率 kw 3.0 5.5 7.5 11 15 18.5 30
    辅风机功率 kw 0.35 0.75 0.75 1.20 2.20 2.20 4
    蒸汽 耗量 kg/h 40 70 99 210 300 366 465
    压力 Mpa 0.40-0.60
    电热型功率 kw 9 15 21 25.5 51.5 60 75
    压缩空气 耗量 m3/min 0.5 0.8 0.8 0.9 1.1 1.3 1.8
    压力 Mpa 0.40-0.60
    作业温度 °C 室温-160°C自动调节
    产品水份 % ≥0.2
    物料收得率 % ≥99
    设备噪音 dB <77
    主机尺寸 Φ mm 400 550 770 1000 1200 1400 1600
    H1 mm 940 1050 1070 1220 1570 1590 1690
    H2 mm 1900 2360 2680 3150 3630 4120 5050
    H3 mm 2050 2590 3020 3600 4180 4770 5800
    B mm 740 890 1110 1420 1620 1820 2100

    选型例:要求每批次处理流浸膏量 I=120kg(含固量为30%)、种子量II=60kg,可由I、II得出理论成品量 M=mI+mII=120kgx30%+60kg=96kg,工作时间T=120kg/30kg/h=4h,技术参数栏中可查出沸腾量为标准载荷范围,故以每班完成两个批次,选用PGL-30型较为适宜。

    视频集锦

      暂无视频集锦...
    图片集锦
    喷雾干燥制粒机
    喷雾干燥制粒机
    喷雾干燥制粒机
    喷雾干燥制粒机
    喷雾干燥制粒机
    喷雾干燥制粒机
    应用客户
    动画演示

    相关工程
    暂无相关工程...
    相关文章
    • 2022-04-13 09:55:20

      近日,由我司承接设计生产的烟草污泥专用卧式圆盘干燥系统在河南中烟工业公司许昌工厂调试成功。

    • 2022-03-24 10:00:11

      近日,由我司承接设计生产的湖北某X军工企业专用型纳米金属氧化铁粉ZB真空耙式干燥机5套即将制作完毕,不日将交付用户。

    • 2022-01-10 12:56:37

      1、升速干燥阶段:就是用非常高的温度在比较短的时间内把物料表面的水分给蒸发掉,这一阶段所需的时间比较短,但也局限于表面的水…

    • 2021-12-29 12:58:09

      振动流化床在使用时,可能会出现走料速度不一的情况,还有就是直接不走料了,这是怎么回事呢?有什么因素会造成这个情况呢?1:温…

    • 2021-12-02 13:00:06

      闪蒸干燥设备的防腐处理:1、首先所有碳钢件均应进行喷砂除锈表面质量应达到标准要求;2、然后涂环氧铁红防锈底漆,再涂面漆。3、…

    • 2021-11-25 13:00:47

      带式干燥机虽然是目前比较高效节能的干燥机,但在实际操作中也是会有故障发生的,我们所做的是找出故障原因来进行排除,让带式干燥…

    相关产品

    Copyright 2022 常州鼎优干燥科技有限公司 苏ICP备2022005062号-1 版权声明 技术支持:江苏东网科技 [后台管理]

    Top
    • 咨询热线(TEL)
    • 18051209678
    • 添加微信咨询
    • 添加微信咨询